Freistehendes Fachwerkhaus mit zwei Wohneinheiten in Salzgitter-Bruchmachtersen
-
In Salzgitter-Bruchmachtersen steht dieses freistehende Fachwerkhaus mit zwei separaten Wohneinheiten zum Verkauf. Das Haupthaus wurde im Jahr 1925 errichtet, 1984 kam ein Anbau hinzu, in dem die zweite Wohnung untergebracht ist. Die Immobilie liegt am Ortsrand in Feldrandlage.
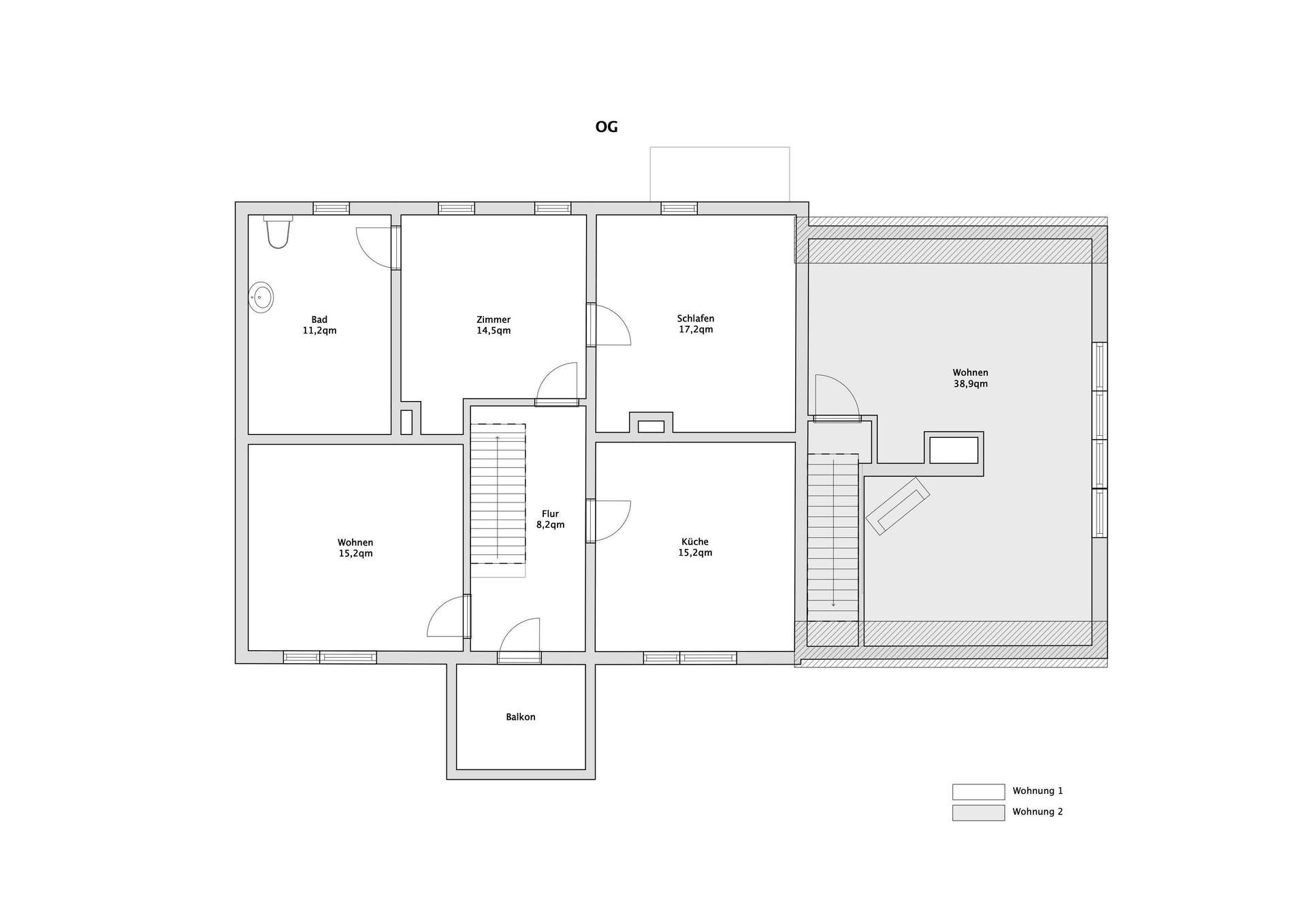
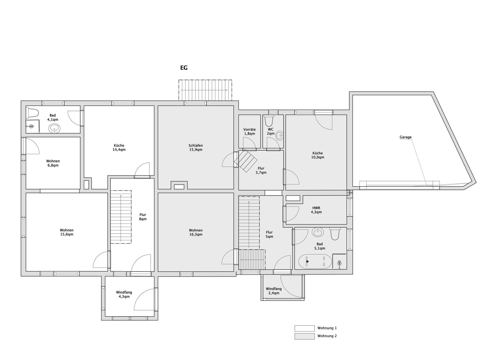
Die erste Wohnung im Haupthaus ist derzeit leerstehend und bietet auf ca. 136qm Wohnfläche vier Zimmer sowie zwei Bäder. Eines der Bäder verfügt über eine Dusche, ein WC und ein Handwaschbecken, das zweite über ein WC und ein zusätzliches Handwaschbecken.
Die zweite Wohnung im Anbau ist im Leerstand. Sie verfügt über ca. 108qm Wohnfläche, aufgeteilt in drei Zimmer. Zwei Bäder stehen zur Verfügung – eines mit Badewanne, Dusche, WC und Handwaschbecken, das andere mit WC und Handwaschbecken. Ein Kamin im Wohnzimmer sorgt für eine gemütliche Wohnatmosphäre.
Das Haus wird über eine Erdgasheizung aus dem Jahr 1985 beheizt. Es ist teilunterkellert und verfügt über einen ausbaufähigen Dachboden, der zusätzliches Potenzial bietet.
Die Immobilie eignet sich ideal für Eigennutzer mit zusätzlichem Mieteinkommen, für Mehrgenerationenwohnen oder Kapitalanleger. Die Kombination aus zwei großzügigen Wohneinheiten, solider Mieteinnahme und naturnaher Lage am Ortsrand bietet vielfältige Nutzungsmöglichkeiten.
-
Flächen
- Wohnfläche: 244 m²
- Grundstücksfläche: 576 m²
- Zimmer insgesamt: 7
- Schlafzimmer: 3
- Badezimmer: 3
- Etagen: 2
- Stellplätze: 1
- Balkone: 1
Zustand & Erschließung
- Baujahr: 1925
- Zustand: sanierungsbedürftig
- Keller: voll unterkellert
Sonstiges
Gern besichtige ich mit Ihnen diese Immobilie.
Ich freue mich auf Ihren Anruf!
PAPE-IMMO
Benjamin Pape 0171 – 62 92 281- Immobilie ist verfügbar ab: sofort
- zurzeit vermietet: ja
-
Das freistehende Fachwerkhaus besteht aus zwei separaten Wohneinheiten mit insgesamt ca. 244 m² Wohnfläche. Die erste Wohnung im Haupthaus bietet vier geräumige Zimmer, zwei Bäder sowie vielseitige Nutzungsmöglichkeiten für Familien oder Paare. Die zweite Wohnung im Anbau verfügt über drei Zimmer, zwei Bäder und ein gemütliches Wohnzimmer mit Kamin, das für eine angenehme Wohnatmosphäre sorgt.
Beide Wohnungen sind funktional geschnitten und mit insgesamt vier Bädern ausgestattet – jeweils mit separaten Bereichen für Gäste oder den täglichen Bedarf. Die Beheizung erfolgt über eine Erdgasheizung aus dem Jahr 1985. Das Haus ist teilunterkellert und verfügt über einen ausbaufähigen Dachboden, der weiteres Potenzial für zusätzlichen Wohn- oder Stauraum bietet.
Die Immobilie eignet sich ideal für Eigennutzer mit zusätzlichem Vermietungsinteresse, Mehrgenerationenwohnen oder als Kapitalanlage. Der gepflegte Zustand sowie die solide Grundstruktur bieten eine gute Basis für individuelle Modernisierungs- oder Ausbaumaßnahmen.
- Befeuerung: Gas
- Bodenbelag: Fliesen, Linoleum
- Badausstattung: Dusche, Badewanne
- Küche: Einbauküche
-
- Energieausweis-Art: Bedarf
- Endenergiebedarf: 226,58 kWh/(m²*a)
- Primärenergieträger: Gas
- Energieeffizienzklasse: G
- Energieausweis-Jahrgang: ab Mai 2014
- Energieausweis-Gebäudeart: Wohngebäude
-
Die Immobilie befindet sich in Salzgitter-Bruchmachtersen, einem ruhigen Ortsteil mit dörflichem Charakter am südlichen Rand von Salzgitter. Die Lage am Feldrand bietet einen weiten Blick ins Grüne und vermittelt naturnahe Wohnqualität.
In wenigen Fahrminuten erreicht man die Innenstadt von Salzgitter-Lebenstedt mit zahlreichen Einkaufsmöglichkeiten, Ärzten, Apotheken, Schulen und Kindergärten. Die Autobahn A7 sowie die Bundesstraße B248 sind ebenfalls schnell erreichbar, was Pendlern einen unkomplizierten Anschluss in Richtung Hildesheim, Braunschweig oder Göttingen ermöglicht.
Die Umgebung lädt zu Spaziergängen und Radtouren ein, und auch Naherholungsziele wie der Salzgittersee oder der Höhenzug Lichtenberge sind nicht weit entfernt. Wer naturnah leben und gleichzeitig gut angebunden sein möchte, findet hier eine attraktive Kombination.
-
- Kaufpreis: 199.000 €
- Käuferprovision: 3,57% des Kaufpreises inkl. gesetzlicher Mwst.
- Hinweis zur Courtage: Eine Maklerprovision wird ausschließlich bei Beurkundung eines Kaufvertrages für die hier angebotene Immobilie an die Firma PAPE-IMMO in Höhe von 3,57% vom Kaufpreis bei notarieller Beurkundung gezahlt. Die Firma PAPE-IMMO muss einen provisionspflichtigen Maklervertrag in gleicher Höhe mit dem Verkäufer abgeschlossen haben.
-
-
Grundrisse





















































































