Charmantes Einfamilienhaus mit Garten in Alvesse ! ! !
-
Willkommen in diesem charmanten Einfamilienhaus in der ruhigen Ortschaft Alvesse, einem Ortsteil der Gemeinde Vechelde.
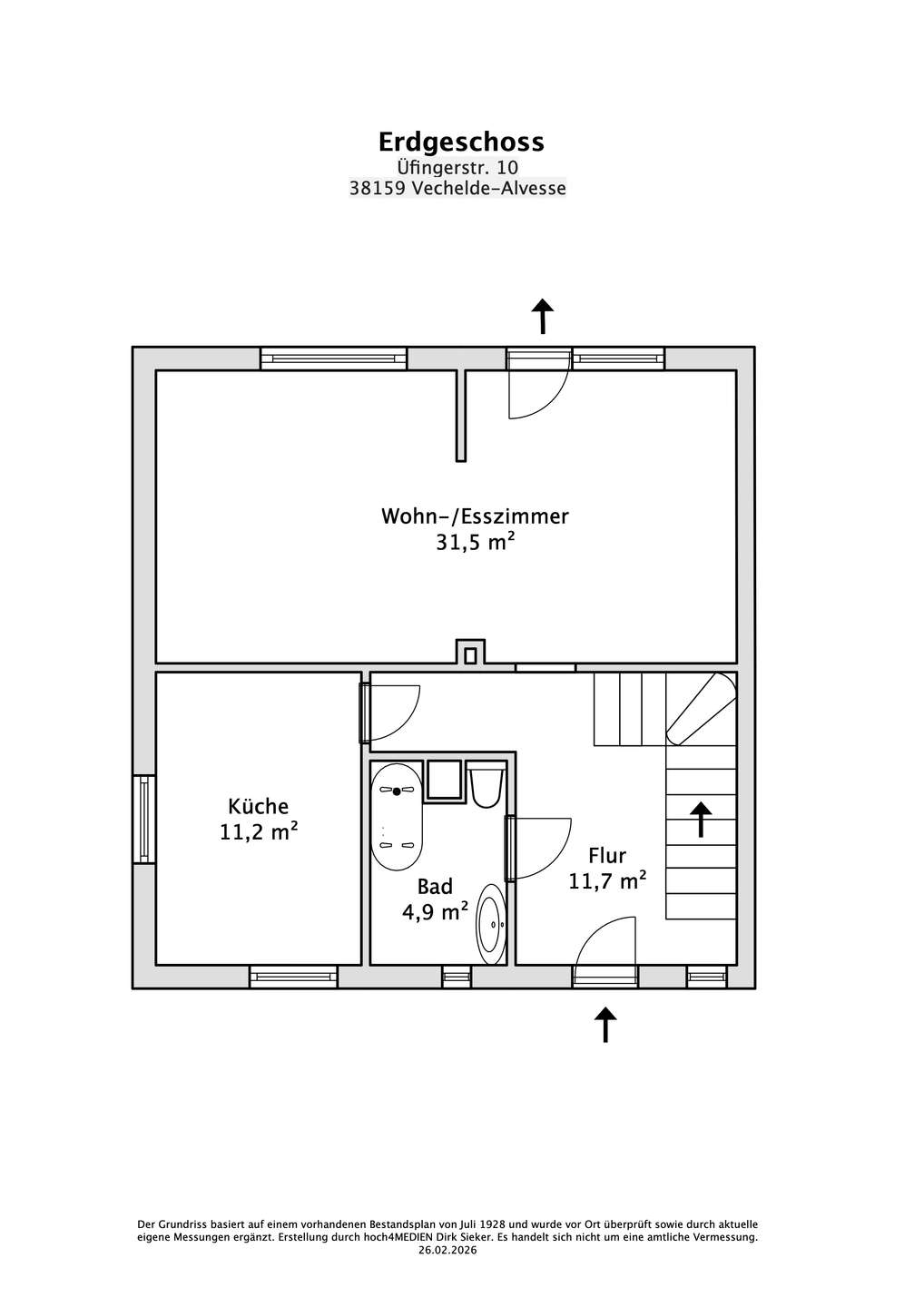
Das im Jahr 2021 modernisierte Haus bietet auf zwei Etagen eine durchdachte Raumaufteilung mit insgesamt 3 Zimmern, darunter 2 Schlafzimmer sowie 2 Bäder, auf einer Wohnfläche von ca. 91,9 m².
Die Böden präsentieren sich je nach Bereich in Beton, Fliesen oder Laminat und verleihen den Räumen ein angenehmes, zeitgemäßes Ambiente. Eine voll ausgestattete Einbauküche ist bereits vorhanden und ermöglicht einen besonders komfortablen Einzug.
Ein besonderes Highlight ist die Gartenüberdachung, die zu jeder Jahreszeit eine schöne Verbindung zwischen Wohnbereich und Garten schafft. Der gemütliche Kamin sorgt in den kälteren Monaten für behagliche Wärme und eine angenehme Atmosphäre. Beheizt wird das Haus zuverlässig über eine Gasheizung.
Das Grundstück umfasst ca. 487 m² und bietet einen gepflegten Garten, der zum Entspannen und Verweilen einlädt. Ein Carport sowie praktische Nebengebäude bieten zusätzlichen Stauraum und runden das Angebot ab.
Direkt hinter der Terrasse beginnt eine rechteckige Rasenfläche, die ordentlich gepflegt ist und dem Garten eine ruhige, offene Wirkung verleiht. Entlang der Ränder verlaufen schmale Blumenbeete mit verschiedenen blühenden Pflanzen, die im Frühling und Sommer für farbliche Akzente sorgen.
In einer Ecke des Gartens befindet sich ein kleines Gartenhaus aus Holz mit schlichtem Dach, das praktischen Platz für Gartengeräte, Blumentöpfe oder Gartenmöbel bietet.
Ein einfacher Zaun bildet die Grenze des Grundstücks. Direkt dahinter erstreckt sich eine große offene Wiese, die nicht zum Grundstück gehört. Dort grasen gelegentlich Pferde.
Vom Garten aus ergibt sich dadurch ein weiter, freier Blick über die Wiese, der dem Grundstück ein besonders offenes und ländliches Flair verleiht. Von der Terrasse aus schaut man über den gepflegten Rasen und die Blumenbeete hinweg auf die grüne Wiese – eine ruhige und naturnahe Umgebung.
Dieses Haus verbindet Wohnkomfort mit einer ruhigen Wohnlage und eignet sich ideal für Paare oder kleine Familien, die ein gepflegtes Zuhause in angenehmer Umgebung suchen.
-
Flächen
- Wohnfläche: 91,9 m²
- Grundstücksfläche: 487 m²
- Zimmer insgesamt: 3
- Schlafzimmer: 2
- Badezimmer: 2
- Etagen: 2
- Stellplatzart: Carport
- Carport-Stellplätze: 2
- Balkone: 1
- Balkon-/Terrassenfläche: 15 m²
Zustand & Erschließung
- Baujahr: 1928
- Zustand: modernisiert
- Letzte Modernisierung: 2021
Sonstiges
Gern besichtige ich mit Ihnen diese Immobilie.
Ich freue mich auf Ihren Anruf!
PAPE-IMMO
Benjamin Pape- Immobilie ist verfügbar ab: nach Vereinbarung
-
– Carport
– 2x Einstellplatz
– Küche (2018)
– elektrische Rollläden (2005)
– Fenster EG Holz (1984)
– Fenster OG Kunststofffenster (2005)
– Dachfenster (2018)
– Kamin (2025)
– Alarmanlage
– Freisprechanlage
– Gartenhaus mit Stromanschluss
– Brunnen
– Dach ca. 1996- Art der Ausstattung: Standard
- Befeuerung: Gas
- Bodenbelag: Fliesen, Laminat
- Badausstattung: Badewanne, Fenster
- Küche: Einbauküche
-
- Energieausweis-Art: Bedarf
- Energieausweis gültig bis: 03.03.2036
- Endenergiebedarf: 195,60 kWh/(m²*a)
- Primärenergieträger: Gas
- Energieeffizienzklasse: F
- Energieausweis-Ausstellungsdatum: 03.03.2026
- Energieausweis-Jahrgang: ab Mai 2014
- Energieausweis-Gebäudeart: Wohngebäude
-
Vechelde-Alvesse liegt verkehrsgünstig zwischen den Städten Braunschweig und Salzgitter, was eine hervorragende Anbindung an das regionale und überregionale Verkehrsnetz gewährleistet. Die Autobahn A39 ist nur wenige Minuten entfernt und ermöglicht einen schnellen Zugang zu den wichtigsten Wirtschaftszentren der Region. Gleichzeitig profitieren Sie von der ruhigen und naturverbundenen Umgebung, die Alvesse zu bieten hat.
Die Umgebung ist geprägt von weitläufigen Feldern, idyllischen Wäldern und malerischen Seen, die zahlreiche Möglichkeiten für Outdoor-Aktivitäten wie Wandern, Radfahren und Schwimmen bieten. Der nahe gelegene Mittellandkanal lädt zu entspannten Bootstouren ein und sorgt für abwechslungsreiche Freizeitmöglichkeiten.
In Vechelde-Alvesse finden Sie umliegend, was Sie für den täglichen Bedarf benötigen. Von Supermärkten und Bäckereien bis hin zu Ärzten und Apotheken – alles ist mit dem Auto, dem Bus oder dem Fahrrad schnell erreichbar. Die hervorragende Infrastruktur der Gemeinde umfasst auch Schulen, Kindergärten und Sporteinrichtungen, die eine optimale Bildung und Freizeitgestaltung für alle Altersgruppen ermöglichen.
Die Gemeinschaft in Vechelde-Alvesse ist bekannt für ihre Freundlichkeit und das starke Zusammengehörigkeitsgefühl. Regelmäßige Veranstaltungen und lokale Feste fördern den sozialen Austausch und machen Alvesse zu einem Ort, an dem man sich wohlfühlt und gerne lebt.
Entdecken Sie die Vorteile dieser einmaligen Lage und genießen Sie das Beste aus ländlichem Charme und städtischer Nähe in Vechelde-Alvesse.
-
- Kaufpreis: 199.000 €
- monatl. Betriebs-/Nebenkosten: 240 €
- Heizkosten in Warmmiete enthalten: ja
- Käuferprovision: 3,57% des Kaufpreises inkl. gesetzlicher Mwst.
- Hinweis zur Courtage: Eine Maklerprovision wird ausschließlich bei Beurkundung eines Kaufvertrages für die hier angebotene Immobilie an die Firma PAPE-IMMO in Höhe von 3,57% vom Kaufpreis bei notarieller Beurkundung gezahlt. Die Firma PAPE-IMMO muss einen provisionspflichtigen Maklervertrag in gleicher Höhe mit dem Verkäufer abgeschlossen haben.
-
-
Grundrisse

































































